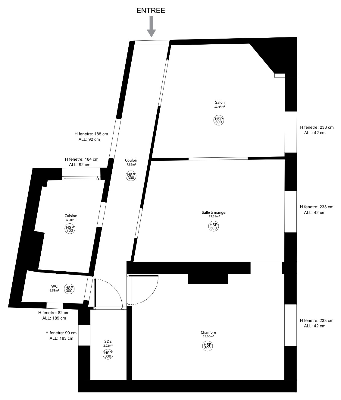
Dans cet appartement de 53 m2, où nous avons repensé l'espace selon les besoins et les goûts uniques de nos clients.
En supprimant un mur porteur, nous avons transformé cet appartement à l'origine composé de deux chambres et d'un salon, pour créer un agencement fluide et contemporain. La cuisine a été déplacée pour optimiser l'espace de vie et favoriser une circulation harmonieuse. De plus, la salle de bain a été agrandie pour offrir un confort accru.
Grâce à sa disposition traversante, cet appartement bénéficie d'une luminosité naturelle remarquable, mettant en valeur chaque élément de design et créant une atmosphère chic, accueillante et chaleureuse."













































